Casas Cártama II
Viviendas unifamiliares EXCLUSIVAS de obra nueva
Casas Cártama II
Viviendas unifamiliares EXCLUSIVAS de obra nueva
en venta
en obras
obra terminada
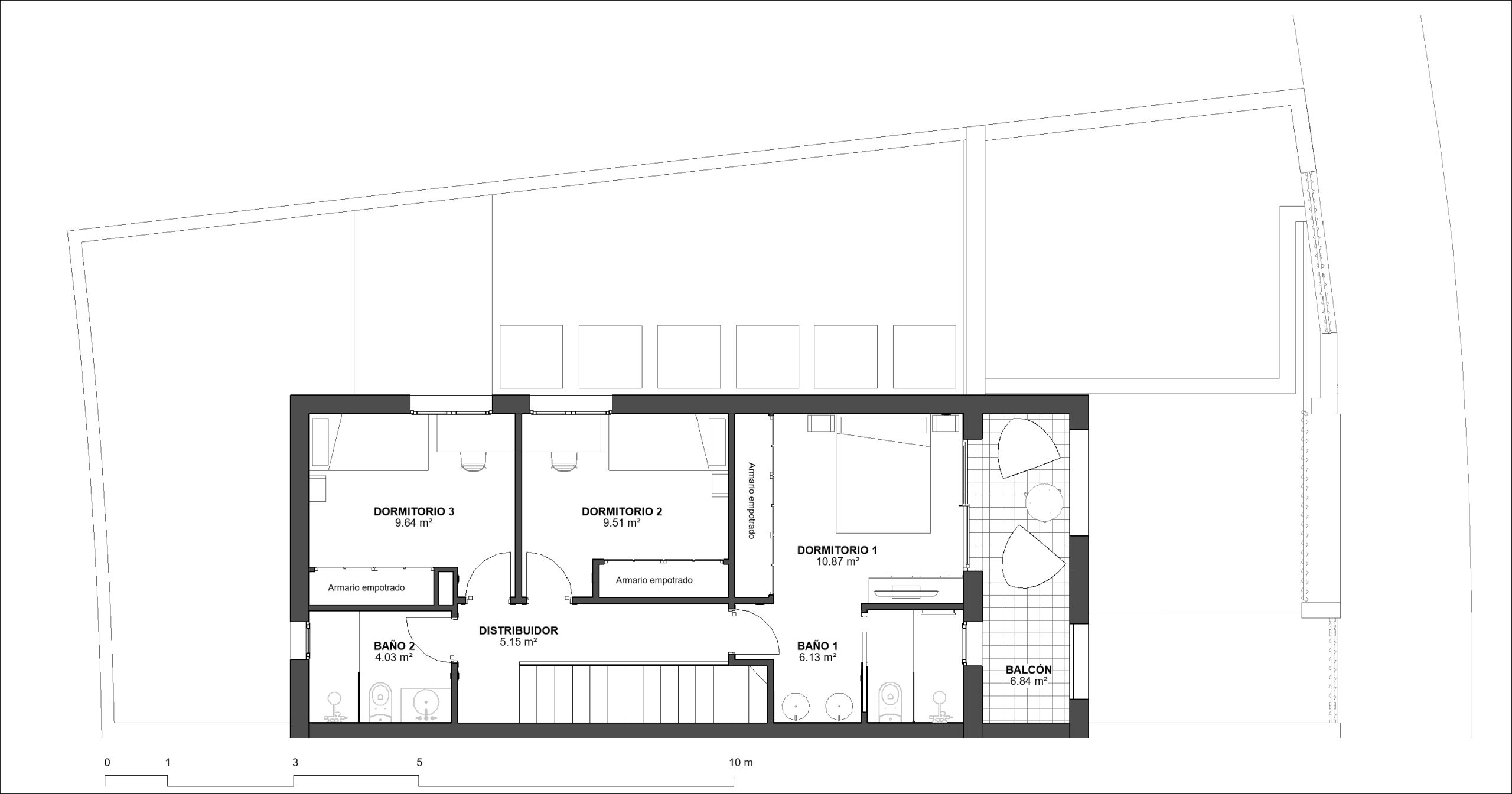
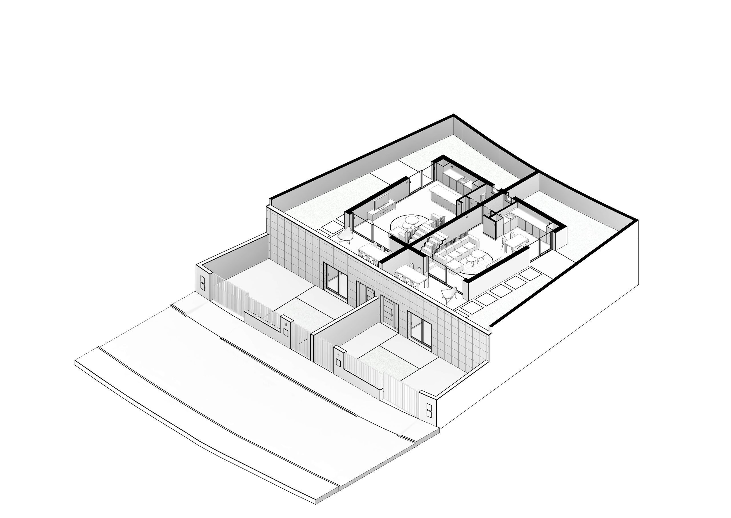
Superficie:
183 m²
Dormitorios
3 – 4
Baños
3 + 1
Todo lo bueno de vivir a las afueras de Málaga pero con todo lo que necesitas a tu alcance
A los alrededores de tu casa tendrás una amplia gama de equipamientos a la vez que un lugar donde reina la paz y tranquilidad a escasos metros de la conexión directa con el centro de la ciudad.
TRANSPORTE:
- 20 min al centro de Málaga
- 15 min al aeropuerto
- 2 min al supermercado

